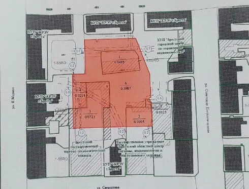
Сегодня состоялся аукцион за земельный участок в центре Бреста, внутри квартала ограниченного улицами Дзержинского, Советских Пограничников, Свердлова Карла Маркса.

Площадь участка выставленного на аукцион составляет 0.37 га, сроком аренды на 5 лет, и стартом цены - 15 486,18 рублей.
Ориентировочный размер убытков, причиняемых изъятием земельных участков и сносом расположенных на них объектов недвижимости, возмещаемый победителем аукциона землепользователям около 345 363,54 руб.
Участие в аукционе принимали такие компании как Айрон, Аматар, Бетонный улей, Будауничы рай и Полесьежилстрой, которые делали свои ставки и догнали стоимость выше 2 млн рублей. По итогу последнюю ставку в 2,7 млн рублей сделал Аматар и выиграл эти торги. Получается, что цена за участок стала больше в 174 раза! Цифры кажутся впечатляющими, на застройщика еще лягут и затраты за снос старых строений на участке.
Предполагается что здесь появится современный клубный дом, которые все чаще строятся, обновляя центр города.

За архитектуру города можно не переживать, Аматар не новичок и среди его проектов уже есть готовые примеры возведения домов в историческом центре на ул. 17 Сентября, Гоголя и Карбышева. Пожелаем застройщику удачи и поскорее представить брестчанам новый проект.
Источник: Wikidom