На сегодня это территории со старыми домами, которые давно уже пора было бы снести. Но для этого нужно понимать кто будет компенсировать убытки, и что там должно появиться взамен.

Речь идет про следующие территории:
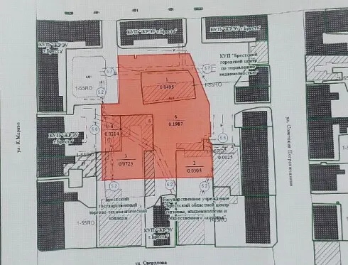
квартал, ограниченный улицами Дзержинского, Советских Пограничников, Свердлова Карла Маркса.
квартал, ограниченный улицами Мицкевича, Советской, Пушкинской, Комсомольской.
Площадь участка на Дзержинского составляет 0.37 га, сроком аренды на 5 лет, и стартом торгов - 15 486,18 рублей. Ориентировочный размер убытков, причиняемых изъятием земельных участков и сносом расположенных на них объектов недвижимости, возмещаемый победителем аукциона землепользователям около 345 363,54 руб.
Площадь участка на Мицкевича составляет 0.92 га, сроком аренды на 5 лет, и стартом торгов - 34 095,52 рублей. Ориентировочный размер убытков составляет 3 372 385,45 руб. По этому участку состоится уже повторный аукцион, так как прошлый победитель предложивший «космическую» сумму отказался от лота.

Предполагается что на данных территориях появятся современные клубные дома, которые все в большем количестве строятся в центре города. Да и спрос на такие квартиры всегда как правило превышает классические предложения в спальниках. Брест явно взял курс на перестройку исторического центра, со сносом старых трущоб, помнящих непонятные времена.
Аукционные торги пройдут в начале декабря. Подробнее об условиях участия на сайте БГЦН.
Источник: Wikidom